COCO HOUSE
Địa điểm xây dựng : Sóc Trăng
Diện tích xây dựng: 142 m2
Quy mô: 2 tầng
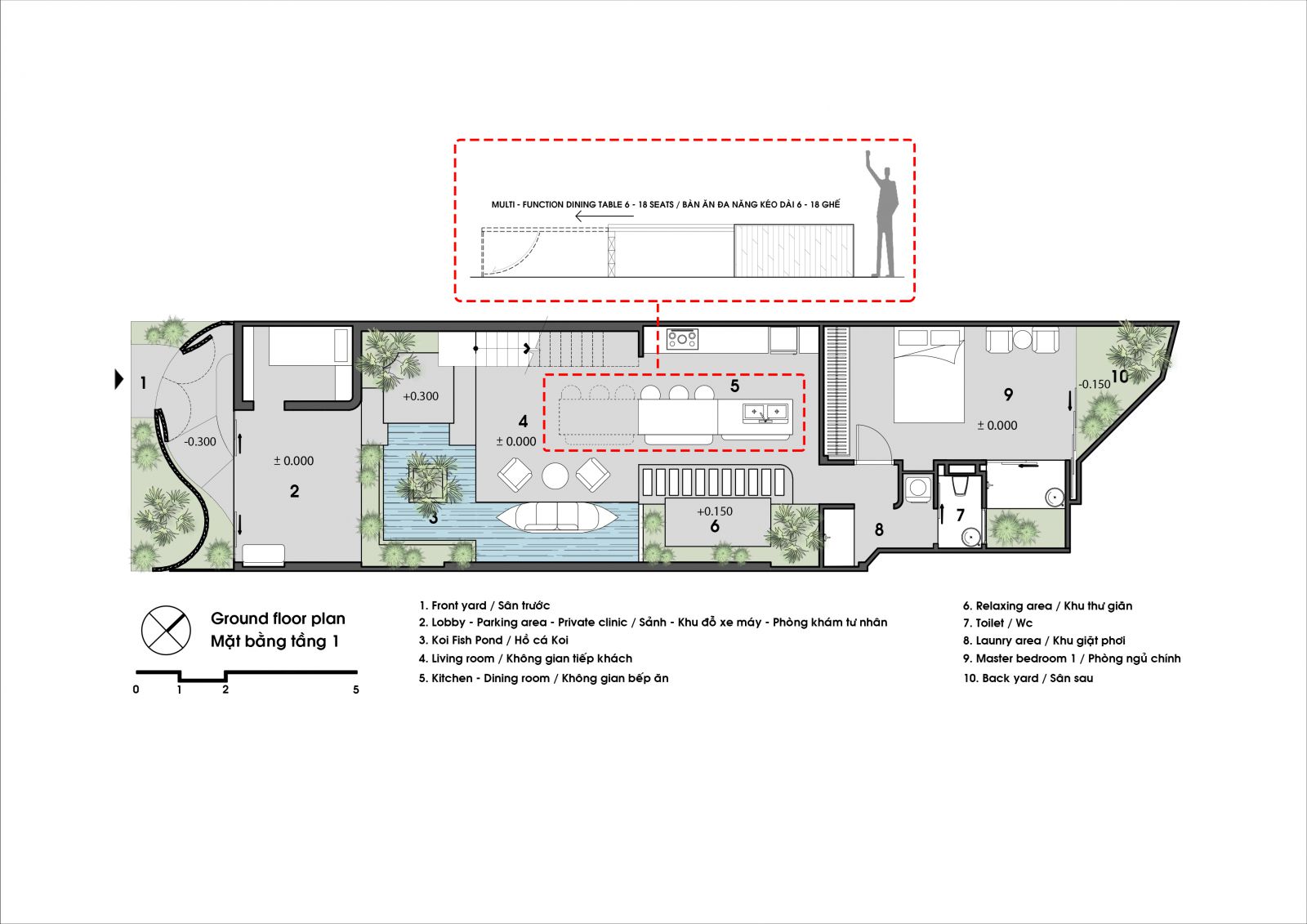
- Tầng 1: Khu vực để xe, phòng mạch tư nhân, không gian khách bếp ăn, phòng ngủ chính, vệ sinh, khu phụ trợ.
- Tầng 2: Phòng đa năng (vừa là phòng ngủ phụ vừa làm phòng làm việc đọc sách), khu thờ (bàn thờ đạo Công giáo), nhà kho.
- Nhà cho 2 thành viên tuổi trung niên: Một người làm bác sỹ, một người đã nghỉ hưu.
- Thời gian thi công: 4 tháng
- Năm hoàn thành: 2021
- Ngôi nhà được lại tạo lại từ nhà cũ, đa số đồ nội thất và thiết bị dùng lại vì mang nhiều giá trị hoài niệm của gia đình (trừ khu bếp, quạt trần).
Đặc điểm kỹ thuật
Với đề bài đặt ra từ Chủ đầu tư: có nhiều diện tích cho trồng cây, nuôi cá. Phong cách đơn giản, rộng thoáng ít công năng. Thiết kế mới vẫn giữ được thói quen sinh hoạt cũ của Chủ đầu tư như: Không gian thư giãn (võng), không gian phục vụ phòng khám bệnh tư nhân. Về cơ bản thì ngôi nhà mang chức năng vừa ở vừa kinh doanh. Bên cạnh đó thiết kế mang các đặc điểm kỹ thuật đặc thù sau:
- Hồ cá và sân vườn lòng ghép vào không gian sinh hoạt chung: Với diện tích hạn chế của khu đất nhưng chủ nhà có số lượng lớn cây xanh cũng như nhu cầu nuôi cá Koi, nên KTS đã lòng ghép các không gian lại với nhau thành một không gian chung. Hồ cá bên cạnh vai trò tạo cảnh quan còn giúp cải thiện vi khí hậu cho ngôi nhà.


- Vật liệu và tạo hình:
+Thiết kế sử dụng gạch kính để tạo hình từ hình dạng sóng nước, gợi về vùng sông nước miền Tây, cũng như là một giải giải tạo hình thẩm mỹ giúp mặt tiền mềm mại hơn. Gạch kính đảm bảo sự riêng tư cho giải pháp không gian mở bên trong nhà những vẫn cung cấp đủ ánh sáng.
+ Thiết kế sử dụng gạch bông gió để đảm bảo chặn được nước mưa từ bên ngoài, nhưng gió có thể đối lưu xuyên các phòng từ mặt tiền đến cuối nhà (Xem mặt cắt). Cách lựa chọn và sắp xếp các viên gạch bông gió cũng được Kiến trúc sư cân nhắc để các hướng khác nhau để mang tính thẩm mỹ cũng như có chức năng thoát nước, thông gió.
- Với thủ pháp vai mượn không gian, Kiến trúc sư đã kết hợp không gian khách bếp ăn thành một. Bằng thủ pháp này mà không gian Bếp ăn có thể linh hoạt mở rộng khi cần, có thể mở rộng bàn ăn từ 6 lên 18 ghế ngồi trong trường hợp đám tiệc, tiếp đông khách cùng lúc.
.jpg)


- Giải pháp cải thiện vi khí hậu:
+ Ngôi nhà với 5 mảnh vườn lớn nhỏ khác nhau vừa đám ứng nhu cầu trồng cây xanh của Chủ đầu tư mà đồng thời cũng giúp giảm tiếng ồn và cản bớt bụi cho ngôi nhà.
+ Sỏi trên mái kính là giải pháp làm cho ánh sáng được lọc bớt, giúp tán xạ ánh sáng vào trong nhà mang lại hiệu ứng ánh sáng đẹp và phù hợp cho sinh hoạt.
Cảm hứng sáng tác
CoCo là bộ phim hoạt hình nổi tiếng của hãng Pixar phát hành năm 2016. Bộ phim tập trung khai thác đề tài về tình cảm gia đình, sự kết nối giữa các thế hệ, các thành viên với nhau dù không cùng một thế giới.
Với cảm hứng trên, KTS mong muốn sáng tạo một cảm giác không gian mới, tạo sự kết nối giữa không gian thực và không gian ảo bằng nghệ thuật sắp đặt thông qua vật liệu gương. Với hiệu ứng được tạo ra bởi gương, không gian sẽ được nhân bản để tạo cảm giác ngôi nhà sẽ rộng hơn (Thực tế chiều ngang của ngôi nhà chỉ có 4,6m). Ở một số điểm nhìn cụ thể tại công trình sẽ cho góc nhìn vô cực. Một số chi tiết trong ngôi nhà chỉ được tạo hình một nữa và khi gặp phản xạ của gương sẽ tạo ra chi tiết hoàn chỉnh (Bạn có thể xem chi tiết vòm cửa sổ ở không gian đọc sách trên tầng 2).
Đây là một thủ pháp để giải phóng không gian cho nhà phố có chiều ngang hẹp, giúp mở rộng không gian về mặt cảm giác đồng thời cũng mang tính ý niệm mà KTS muốn truyền tải vào công trình.

0377767655